REQUEST A TOUR If you would like to see this home without being there in person, select the "Virtual Tour" option and your agent will contact you to discuss available opportunities.
In-PersonVirtual Tour

$ 8,000,000
Est. payment | /mo
44.75 Acres Lot
$ 8,000,000
Est. payment | /mo
44.75 Acres Lot
Key Details
Property Type Vacant Land
Sub Type Residential
Listing Status Active
Purchase Type For Sale
MLS Listing ID 30027222
HOA Y/N No
Annual Tax Amount $1,544
Tax Year 2023
Lot Size 44.750 Acres
Acres 44.75
Property Sub-Type Residential
Property Description
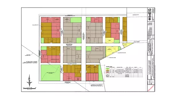
This is an incredible opportunity to step into a property with a preliminary plat approved subdivision. This Dougherty Ranch 44.75 acre tract in the path of development located right off of West Broadway between Flynn Lane and the Missoula Airport, is approved for up to 614 units. Actual unit quantity and product type can vary within approved transects. Permitted uses include an array of Residential Types from Mixed-Use, Townhouse to Assisted Living, Lodging Types, Commercial Uses from Office, Retail to Tavern, Education Types including Day Care Centers, and other Industrial/Manufacturing uses as outlined in Form Based Code Transect standards. Full approval docs available in pdf form. CAD drawings available from original developer for $300k.
Location
State MT
County Missoula
Zoning See Remarks
Interior
Interior Features InteriorFeatures
Fireplace No
Exterior
Utilities Available Electricity Available, Natural Gas Available
View Y/N Yes
Water Access Desc Public
View City, Meadow, Mountain(s)
Topography Level
Road Frontage Unimproved
Garage No
Building
Lot Description Meadow, Level
Sewer Public Sewer
Water Public
Others
Senior Community Yes
Tax ID 04220007302010000
Special Listing Condition Standard
Listed by Coldwell Banker Commercial Drew Ward Warne Advisory Group
GET MORE INFORMATION





